info@thoesservice.nl 06 22495761

Thoes Service

de ideale oplossing voor tijdelijk wonen

Thoes Service is een regionaal initiatief om het tijdelijk wonen tijdens de verbouwing of herstel van aardbevingschade van uw reguliere woonruimte zo comfortabel mogelijk te maken. De meest ideale oplossing is om de tijdelijke unit (afm. 6 x 12 meter) op uw eigen erf te plaatsen, zodat gebruik kan worden gemaakt van de bestaande nutsvoorzieningen en aansluitingen zoals gas, electra, telecom en riolering.

Bijkomend voordeel is dat u gebruik kunt blijven van maken van voorzieningen in of rond uw vaste woning die wel beschikbaar kunnen blijven tijdens de verbouwing, zoals bijvoorbeeld een garage. Post en kranten kunt u op het bestaande adres blijven ontvangen.

Thoes service verzorgt de gehele procedure van begin tot einde. Wij plaatsen de unit, zorgen er voor dat alle aansluitingen worden gerealiseerd en ruimen aan het einde van het traject alles weer netjes op.

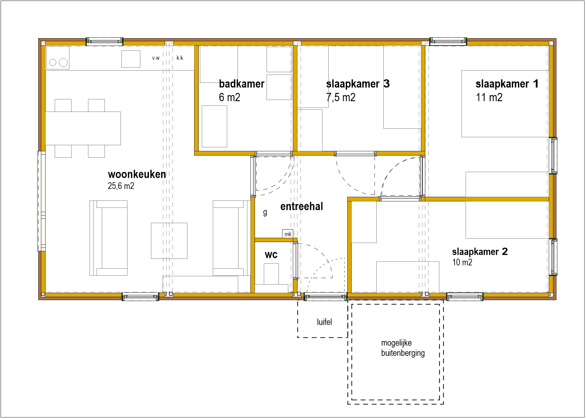
Met een ruime woonkeuken, 3 slaapkamers, badkamer, toilet en entreehal biedt de tijdelijke woonruimte van Thoes Service alle comfort die u nodig heeft. Een buitenberging van ca. 6m2 is optioneel.

Contact

Molenweg 11 9919 AE Loppersum

06 22495761

info@thoesservice.nl